С начала 2026 года в Московской области вступят в силу новые правила, существенно меняющие подход к частной застройке. Регион запускает эксперимент,...
ПРЕДЛОЖИТЬ ТОРГ
Дом в Московская область, Домодедово городской округ, с. Введенское, КП Лакомка тер. 381 (132 м²), 381
6 650 000 р.
ОПИСАНИЕ
Продается дом 132 м² на участке 7 соток в коттеджном поселке Лакомка (Домодедово, с. Введенское)
Цена: 6 650 000 руб. (торг уместен, звоните!)
Ключевые характеристики:
• Местоположение: Московская область, г.о. Домодедово, с. Введенское, коттеджный поселок Лакомка (ИЖС), дом 381
• Кадастровый номер участка: 50:28:0090240:1641
• Кадастровый номер дома: 50:28:0090240:2913
• Площадь дома: 132 м²
• Площадь участка: 7 соток
Описание дома:
Просторный и современный строящийся дом из прочных полистеролбетонных крупноформатных армированных блоков. Крыша — надежная металлочерепица. Полное остекление качественными двухкамерными стеклопакетами для максимального света и комфорта.
Что уже готово и подключено:
• Электричество подведено на участок (15 кВт).
• Установлен септик на 5 м.
• Пробурена скважина с водой (глубина 50 м, дебет 1,5 м/час).
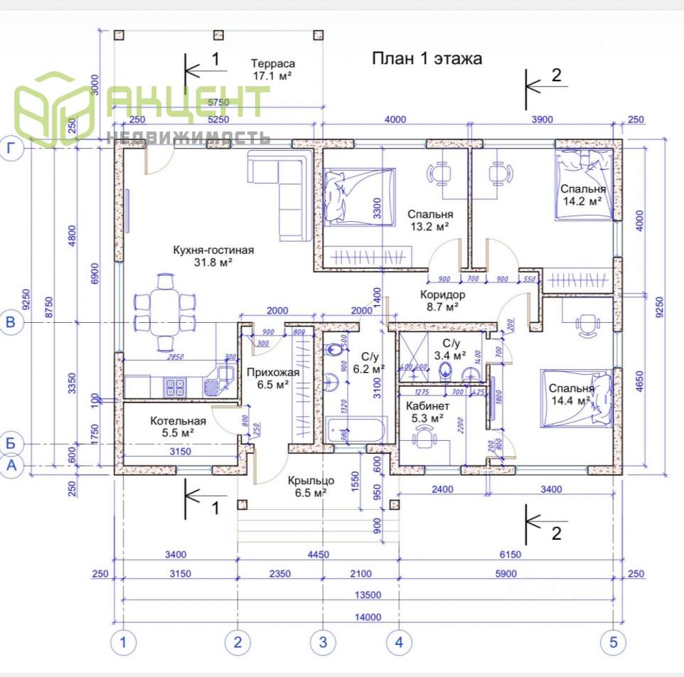
Планировка:
• 3 спальни (в главной — кабинет).
• Просторная гостиная с кухней (32м²).
• 2 санузла.
• Котельная, прихожая, гардеробная.
Проект дома прилагается (фото проекта и стройки — в объявлении). Дом на стадии черновой отделки — добейте под себя! Идеально для большой семьи: тишина, природа, 20 мин до МКАД по Каширскому шоссе. Рядом школы, магазины, лес.
Торг при осмотре! Информация взята из открытого источника и может отличаться от действительной.
-
№ лота:
117513
-
Этажей:
1
-
Коммуникации:
электричество
-
Дополнительно:
,
-
Обновлен:
23.04.2026
Контакты риэлтора
Администратор сайта
РАСПОЛОЖЕНИЕ
Московская область, Домодедово городской округ, с. Введенское, КП Лакомка тер., 381
55 км до МКАД
ПОХОЖИЕ ОБЪЯВЛЕНИЯ
Объявлений не найдено
ИЩУТ ТАКЖЕ






