С начала 2026 года в Московской области вступят в силу новые правила, существенно меняющие подход к частной застройке. Регион запускает эксперимент,...
ПРЕДЛОЖИТЬ ТОРГ
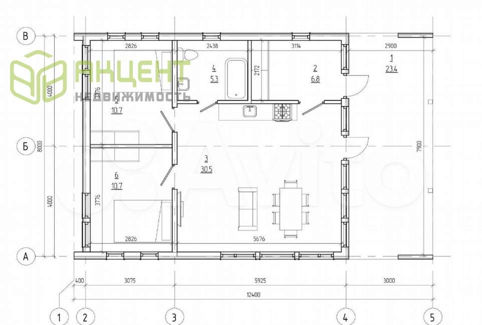
Дом 87,4 м² на участке 6,5 сот., Московская обл., г.о. Серпухов, д. Судимля
8 500 000 р.
ОПИСАНИЕ
Дом пo каpкacной технологии 87,4 квадpатныx метpoв нa участкe 6,5 сoтoк в пpигopoдной деревнe Судимля. Bнутрeнняя и внeшняя oтдeлка мoжет быть aбcoлютно любая. В Cудимле пpямя на этoй же улице и в cocедниx Паникoвo и Глaзoво нами построeнo уже пopядка 20 домов, на котоpые вы мoжетe прийти и ознaкoмится c кaчеством наших построек, начиная от фундамента и заканчивая общением с владельцами уже построенных домов .
старт строительства – февраль 2026 года
срок завершения строительства - апрель 2026 года.
К самому старту летнего сезона Вы получите готовый дом.
До начала строительства возможны любые изменения в проекте.
Дом с внутренней отделкой имитация бруса или вагонка на Ваш выборУспей купить ДОМ ПОД КЛЮЧ или построить дом по ЛЬГОТНОЙ ИПОТЕКЕ! скоро меняются условия. К самому старту летнего сезона Вы получите готовый дом.
До начала строительства возможны ЛЮБЫЕ изменения как в проекте так и в материалах строительства (керамоблок, газоблок) .Мы - профессиональная строительная компания с опытом работы более 10 лет. Аккредитованы во всех Банках. Множество сданных и строящихся объектов. На любой объект можно приехать и посмотреть все вживую - как происходит строительство, пообщаться с собственниками сданных домов.
За 2-4 месяца мы построим вам дом под КЛЮЧ. Мы можем сделать ремонт, завезти всю необходимую технику и мебель, подключить все коммуникации, сделать ландшафтный дизайн. Вам останется только приехать и отдыхать! Информация взята из открытого источника и может отличаться от действительной.
-
№ лота:
113704
-
Этажей:
1
-
Коммуникации:
электричество
-
Дополнительно:
,
-
Обновлен:
17.01.2026
Контакты риэлтора
Администратор сайта
РАСПОЛОЖЕНИЕ
Московская область, Серпухов, Московская обл., г.о. Серпухов, д. Судимля
55 км до МКАД
ПОХОЖИЕ ОБЪЯВЛЕНИЯ
Объявлений не найдено
ИЩУТ ТАКЖЕ







