Десятки тысяч земельных участков по всей России стоят заброшенными: зарастают бурьяном, превращаются в стихийные свалки, а недостроенные дома...
ПРЕДЛОЖИТЬ ТОРГ
Показать ещё
Дом, 160 м², Россия, Московская область, городской округ Чехов, Большое Петровское, Заречная улица
17 800 000 р.
ОПИСАНИЕ
Возможна ИПОТЕКА. Новый одноэтажный дом, с жилой площадью 160 кв.м., расположенный на участке 8,7 соток (ИЖС) в охраняемом коттеджном посёлке Петровское Парк, городской округ Чехов, д. Большое Петровское, КП Петровское парк, недалеко от прекрасной инфраструктуры г. Чехова.
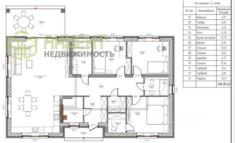
ПРОПИСКА. У этого уютного дома очень функциональная планировка: просторная кухня-гостиная с выходом на террасу, четыре больших спальни, 2 с/у, бойлерная, кладовка.
Стены дома выполнены из газобетонного блока, отделка кирпичом, крыша из фальцевой кровли, смонтирована металлическая водосточная система с приёмом дождевой воды и выводом в ливневую канализацию. Выполнена отмостка вокруг дома. Большие ламинированные энергосберегающие окна REHAU. Фундамент: плита на сваях .
Участок огорожен забором в едином для всего посёлка стиле.
Дом предлагается без отделки .
В дом заведены все коммуникации, включая электрику, водоснабжение, канализацию и интернет.
Посёлок бизнес-класса Петровское Парк создаёт для своих жителей стильную атмосферу европейской деревни: респектабельные дома, единый стиль заборного ограждения участков, асфальтированные улицы, площадки для спортивных занятий и детских игр, возможность отдыха на собственном речном пляже и, разумеется, очень высокий уровень безопасности. Обслуживание - всего 4 тр в месяц, свет и газ - по счётчикам.
Ключевая особенность посёлка - действующая центральная канализация, наличие которой полностью снимает ограничения по стокам и обеспечивает чистый воздух на всей территории посёлка.
Добраться до дома очень легко. На личном автомобиле: 40 мин. от МКАД по
Симферопольскому шоссе, до г. Чехова - 7 мин. На общественном транспорте: на электричке Курского направления необходимо доехать до ж/д станции г. Чехова или автобусом 1365 от метро Лесопарковая доехать до автовокзала г. Чехова, далее автобусом 23 или 24 до остановки Морозовка, далее пешком около 500 метров до посёлка
Петровское Парк.
СПЕШИТЕ .
Доступная инфраструктура:
Магазин шаговой доступности Верный (2 мин, для экстренных случаев)
Супермаркет Перекрёсток (10 минут)
Продуктовый рынок мкрн. Губернский (10 минут)
Строительный рынок Удачный (3 минуты)
Строительный рынок Губернский (10 минут) Информация взята из открытого источника и может отличаться от действительной.
-
№ лота:
112014
-
Этажей:
1
-
Коммуникации:
электричество
-
Дополнительно:
,
-
Создан:
08.10.2025
-
Обновлен:
08.10.2025
Контакты риэлтора
Администратор сайта
РАСПОЛОЖЕНИЕ
Московская область, Чехов, Россия, Московская область, городской округ Чехов, Большое Петровское, Заречная улица
55 км до МКАД
ПОХОЖИЕ ОБЪЯВЛЕНИЯ
ИЩУТ ТАКЖЕ









