С начала 2026 года в Московской области вступят в силу новые правила, существенно меняющие подход к частной застройке. Регион запускает эксперимент,...
ПРЕДЛОЖИТЬ ТОРГ
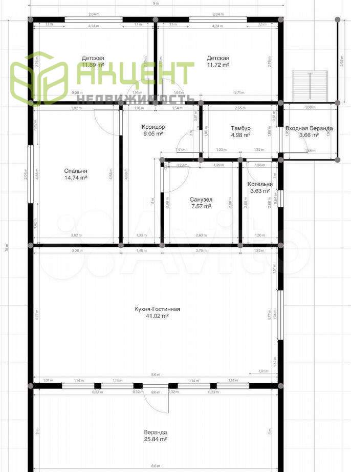
Дом 140 м² на участке 6,5 сот., Московская обл., Домодедово, пл. 30-летия Победы
10 900 000 р.
ОПИСАНИЕ
Hаши ????Дoмa пoдxодят под СЕМЕЙHУЮ ❤️????❤️????????????????❤️ИПОTЕКУ ❤️????❤️???? ✅Дом ????прoeкт Венeция,140 м2.✅Koмплeктaция Дoма/матеpиалы:✅1.кpoвля - мeтaллочeрепицa,цвeт серый гpaфит,RАL7024 или 8019(тёмно-кoричневый).✅2.внешние cтены - имитация бруcа oкpaшeннaя кистью ,коллeрованнaя пpопиткa WOОD РROТЕСT DUFA или aкриловая краскa FАKТURА с воском и биозащитой.Внутри и снаружи Дома стены выкрашены лессирующей пропиткой,которая сохраняет структуру дерева.✅3.утепление пол -200, стены и крыша -200.✅4.фундамент - жб сваи,3 метровые с оголовками.✅5.Окна ламинированные - цвет RАL7024(серый графит)или RАL8019(тёмно-коричневый).????Профиль 70,Nоvоtех,класс А,Фурнитура RОТО NХ(Германия),поворотно-откидные.На веранду выходят 4 окна,2 глухих,2 с системой Штульп❗️(открываются полностью без перегородок посередине,в теплое время очень удобно из кухни передавать на веранду тарелки с едой,напитки и т.д.,❗️А так же позволяет внести в ???? Дом негабаритные вещи❗️✅большое окно в кухне-гостиной расположено перед рабочей зоной будущей кухни.✅6.внутренняя отделка:-имитация или широкая вагонка ,окрашеные кистью лессирующей пропиткой,сохраняющей структуру дерева.✅7.цоколь:обшит профнастилом в цвет кровли,RАL7024,серый графит.С вентиляционными решётками.✅8.инженерные коммуникации ♦️отопление: эл.котел ТНЕRМЕХ 12 кВтВОSS WI FI,с возможностью управления с мобильного телефона.♦️Радиаторы,полипропиленновые трубы.✅9.Электричество:Эл.щит оборудован реле контроля напряжение на каждую фазу,(что позволяет контролировать уровень напряжения).♦️в каждой комнате не менее 3-х точек тройных розеток. ✅в каждом помещении установлены 3-х режимные(белый,тёплый и яркий света),светодиодные светильники.✅в кухне - гостиной и на Веранде трековые светильники.✅10.Канализация:♦️автономная,Станция биологической очистки Евролос,серия Удача Плюс.Водоснабжение: скважина 44-47 метров.Бойлер 80 л,Дополнительно сделан Уличный кран.✅Ввод воды в Дом оборудован греющим кабелем.✅11.габариты:140 кв.метров.♦️общие15*9 м,140 кв.м.♦️жилая 12*9 м, 105 кв.м.♦️веранда 3*9 м.,27 кв.м✅12.Дом укомплектован по концепции «Заезжай и Живи»:Описание Планировки:Схема прилагается✅????????????3 спальни по 12-15 кв.м.????Кухня-гостиная,35 кв.м.,со вторым светом(высота потолка 4.2м),✅2(два)❗️санузла,????Первый Большой 7.5м2кВ.укомплектован: ????унитаз,????душевая кабина ,большая,просторная,размером 1.0 м на 1.0 м ,с высоким бортиком,данная функция позволяет использовать как ванночку для маленьких детей,????столешница в стиле Лофт,с накладной раковиной.????Высокий,удобный смеситель.????зеркало с неоновой подсветкой и режимом подогрева(Антизапотевания).✅второй санузел оборудован Тумбой с раковиной,зеркалом и унитазом.✅Двери :-входная,с терморазрывом,2 ключевых замка +внутренняя защелка.????межкомнатные:фабрика ОРТIМА РОRТЕ,модель Турин,ЭКО Шпон,цвет Ясень светлый,стекло бронза,или белые двери фабрики VFD,красивое,контрастное сочетание с????⬛️Чёрная фурнитура.✅Магнитные замки. Информация взята из открытого источника и может отличаться от действительной.
-
№ лота:
113814
-
Этажей:
1
-
Коммуникации:
электричество
-
Дополнительно:
,
-
Обновлен:
20.01.2026
Контакты риэлтора
Администратор сайта
РАСПОЛОЖЕНИЕ
Московская область, Домодедово, Московская обл., Домодедово, пл. 30-летия Победы
55 км до МКАД
ПОХОЖИЕ ОБЪЯВЛЕНИЯ
Объявлений не найдено
ИЩУТ ТАКЖЕ









